Green Curve, Banstead
£1,750,000
Guide Price
Sold STC
Property Features
Property Features
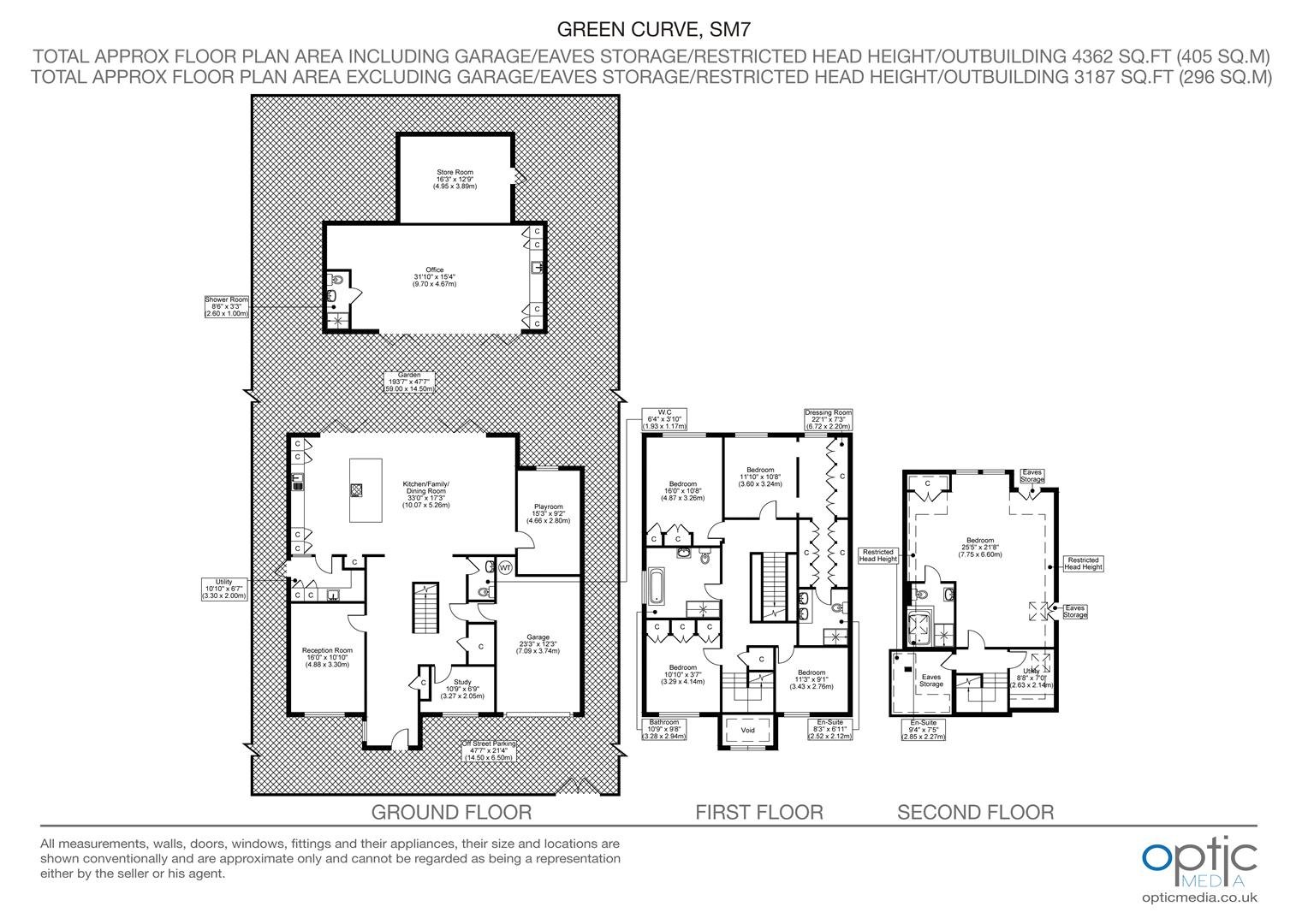
- Impeccably refurbished living space, arranged across three floors with five bedrooms and four luxury bathrooms
- Stunning open-plan kitchen, breakfast, and family room overlooking beautifully landscaped west-facing gardens
- Gated property featuring a large driveway, immaculate gardens, and a substantial detached studio
- Prestigious Banstead location close to excellent schools, local amenities, green spaces, and mainline transport links
- EPC Rating C
- Council Tax Band G
Property Summary
Situated on the highly sought-after Green Curve, Banstead, this exceptional detached residence offers impeccably refurbished living space, combining architectural elegance with contemporary luxury. Arranged over three beautifully appointed floors, the home provides five substantial bedrooms and four exquisitely finished bathrooms, delivering both comfort and sophistication in equal measure.
From the moment you step into the grand entrance hall—with its striking central staircase rising to a galleried landing—the sense of space, light, and meticulous craftsmanship is immediately apparent.
The ground floor presents a series of elegant reception rooms, perfectly designed for refined entertaining as well as relaxed family living. At the heart of the home lies a breathtaking open-plan kitchen, breakfast, and family space, thoughtfully designed to frame uninterrupted views across the manicured westerly-facing gardens.
The principal suite is a sanctuary of indulgence, featuring a bespoke dressing room, walk-in wardrobes, and a luxurious en-suite finished to an exceptional standard. Additional bedrooms are served by a family bathroom, while a further upper floor provides additional bedroom space with en-suite facilities, ideal for guests, older children or flexible use.
The rear garden offers a truly tranquil retreat including an immaculate terrace leading onto a beautifully maintained lawn, beyond which sits a substantial detached studio—perfectly suited as a private office, gym, or bespoke entertaining space.
Ideally located, the property enjoys close proximity to boutique local amenities, outstanding schools, and Banstead mainline station, offering effortless connectivity.
This is a rare opportunity to acquire a home of exceptional quality, where design, space, and location combine to create a truly distinguished residence.
From the moment you step into the grand entrance hall—with its striking central staircase rising to a galleried landing—the sense of space, light, and meticulous craftsmanship is immediately apparent.
The ground floor presents a series of elegant reception rooms, perfectly designed for refined entertaining as well as relaxed family living. At the heart of the home lies a breathtaking open-plan kitchen, breakfast, and family space, thoughtfully designed to frame uninterrupted views across the manicured westerly-facing gardens.
The principal suite is a sanctuary of indulgence, featuring a bespoke dressing room, walk-in wardrobes, and a luxurious en-suite finished to an exceptional standard. Additional bedrooms are served by a family bathroom, while a further upper floor provides additional bedroom space with en-suite facilities, ideal for guests, older children or flexible use.
The rear garden offers a truly tranquil retreat including an immaculate terrace leading onto a beautifully maintained lawn, beyond which sits a substantial detached studio—perfectly suited as a private office, gym, or bespoke entertaining space.
Ideally located, the property enjoys close proximity to boutique local amenities, outstanding schools, and Banstead mainline station, offering effortless connectivity.
This is a rare opportunity to acquire a home of exceptional quality, where design, space, and location combine to create a truly distinguished residence.






































