Stagbury Avenue, Chipstead
£770,000
Offers Over
Property Features
Property Features
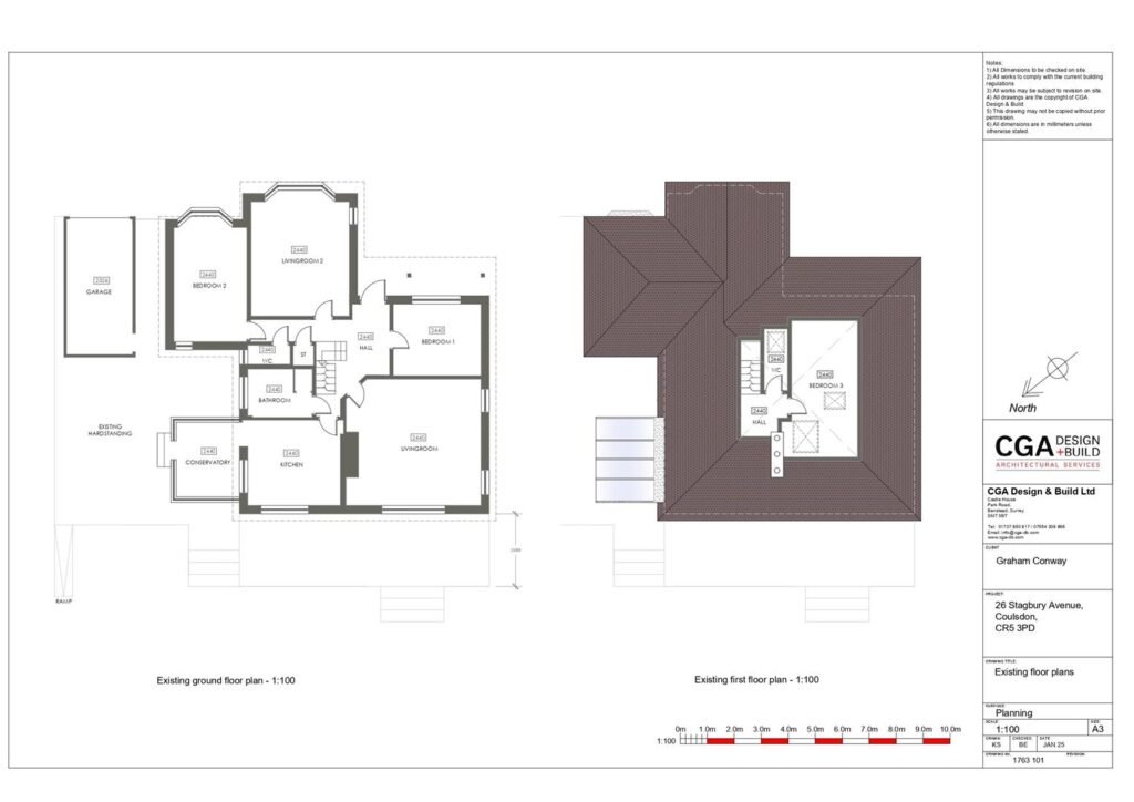
- 3 Bedroom Detached Chalet Bungalow
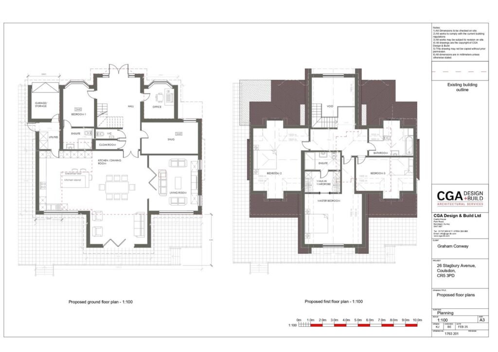
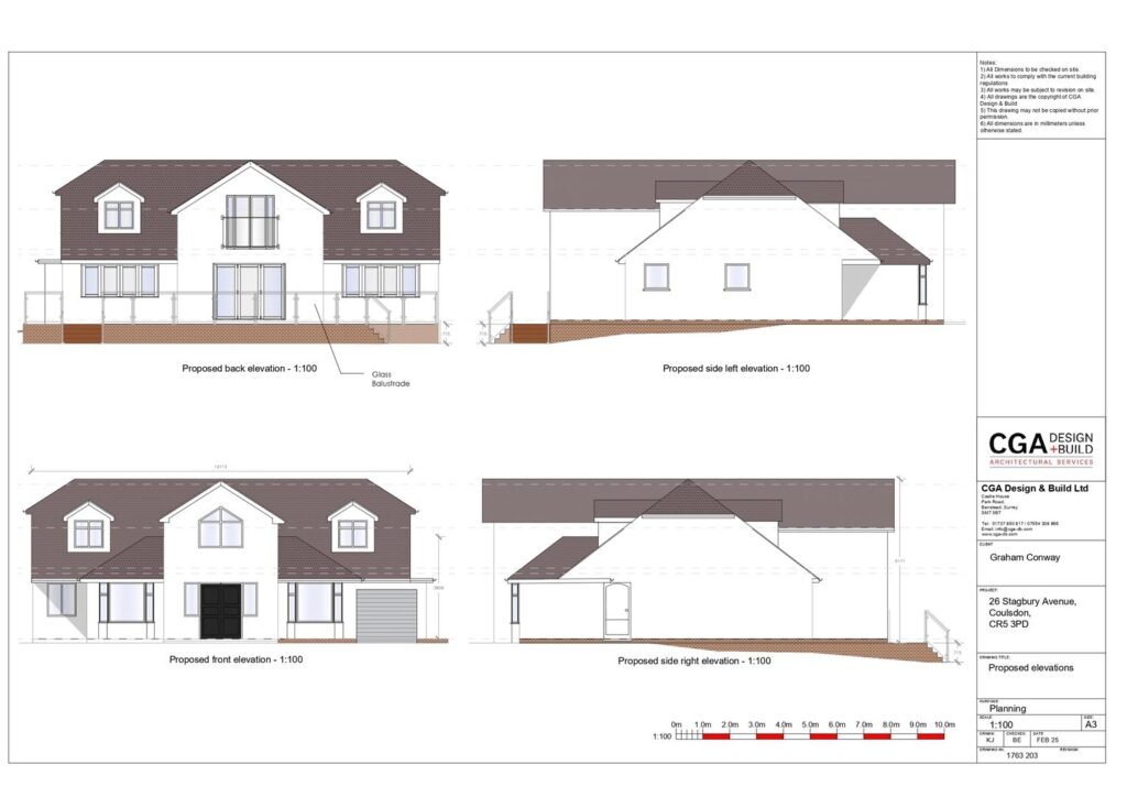
- Full Planning Granted With Reigate and Banstead Council - REF: 25/00380/HHOLD
- Large Mature Rear Garden With Stunning Views
- Close To Banstead Woods, Chipstead Golf Course, and Chipstead rail station
- Plot measures 0.23 Acres (according to surrey interactive maps)
- Plot width measures approx 18.5 meters (according to surrey interactive maps)
- EPC Rating D
- Council Tax Band F
Property Summary
Set in the picturesque area of Chipstead, this charming, detached chalet bungalow presents an exceptional opportunity for those seeking a spacious and versatile home. Boasting three well-proportioned bedrooms and two reception rooms, this property is perfect for families or those who enjoy entertaining.
Set on a generous plot, the bungalow comes with full planning permission, allowing you to create your dream home tailored to your personal tastes and needs. The flexible living spaces offer a wonderful canvas for modern living, while the large mature rear garden is a standout feature. This tranquil outdoor space not only provides a high degree of privacy but also showcases stunning views over Banstead Woods, is an ancient woodland and Local Nature Reserve in Surrey, offering around 230 acres of scenic walks.
The property is complemented by a mature front garden, a private driveway that accommodates parking for several vehicles, and a garage for added convenience. Additionally, the nearby Chipstead Golf Course offers recreational opportunities for golf enthusiasts, further enhancing the appeal of this delightful location.
In summary, this detached chalet bungalow on Stagbury Avenue is a rare find, combining charm, flexibility, and the potential for expansion in a serene setting.
Planning approved with Reigate and Banstead Council - REF: 25/00380/HHOLD
Set on a generous plot, the bungalow comes with full planning permission, allowing you to create your dream home tailored to your personal tastes and needs. The flexible living spaces offer a wonderful canvas for modern living, while the large mature rear garden is a standout feature. This tranquil outdoor space not only provides a high degree of privacy but also showcases stunning views over Banstead Woods, is an ancient woodland and Local Nature Reserve in Surrey, offering around 230 acres of scenic walks.
The property is complemented by a mature front garden, a private driveway that accommodates parking for several vehicles, and a garage for added convenience. Additionally, the nearby Chipstead Golf Course offers recreational opportunities for golf enthusiasts, further enhancing the appeal of this delightful location.
In summary, this detached chalet bungalow on Stagbury Avenue is a rare find, combining charm, flexibility, and the potential for expansion in a serene setting.
Planning approved with Reigate and Banstead Council - REF: 25/00380/HHOLD


































