Poplar Road, Sutton

£650,000 Guide Price

Property Features

  • Ref: CHE00530
  • Type: Semi-Detached House
  • Availability: For Sale
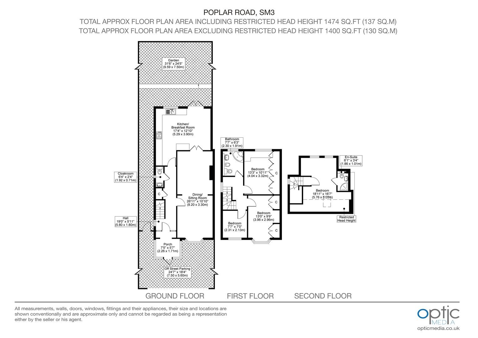
  • Bedrooms: 4
  • Bathrooms: 2
  • Reception Rooms: 2
  • Council Tax Band: E
  • Tenure: Freehold
  • Make Enquiry
  • Floorplan
  • View Brochure
  • Video Tour

Property Features

  • Four Bedrooms
  • Two Bathrooms
  • Semi-Detached
  • Off Road Parking
  • Council Tax Band E
  • EPC Rating D

Property Summary

GUIDE PRICE: £650,000-£675,000

Situated on the popular Poplar Road in Sutton, this attractive semi-detached home offers a wonderful blend of space, comfort, and convenience. With four generously sized bedrooms, it is ideally suited to families looking for a welcoming and versatile home.

The property features a spacious reception room, providing an ideal setting for relaxing with family or entertaining guests. Two well-appointed bathrooms add to the practicality of the layout, ensuring smooth day-to-day living for a busy household.

Further benefits include off-street parking for two vehicles, offering ease and convenience for both residents and visitors alike. The home is well positioned close to a range of local amenities, including shops, schools, and parks, making it an excellent choice for those seeking a balance between everyday convenience and a pleasant residential setting.

This charming home on Poplar Road is more than just a property — it’s a place to put down roots and create lasting memories. An excellent opportunity in a sought-after location, early viewing is highly recommended.

Icon

4.8 102 reviews

  • Avatar Karin Freestone ★★★★★ in the last week
    I would strongly recommend Christie’s estate agent, they have been outstanding every step of the way, … More from the smooth selling of our property to completion. We would like to particularly thank Fern Clarkson for her professionalism. She has worked closely with us and has demonstrated exemplary communication throughout the process and shared our frustrations along the way! We cannot praise Fern enough for everything she did, she went above and beyond for us and is true asset to Christies!

Calculate Stamp Duty

Mortgage Calculator

Mortgage Advice