Colcokes Road, Banstead
£1,090,000
OIRO
Property Features
Property Features
- Detached family home
- 4 bedrooms and 4 reception areas
- Ideal for a host of local amenities
- EPC Rating D
- Council Tax Band G
Property Summary
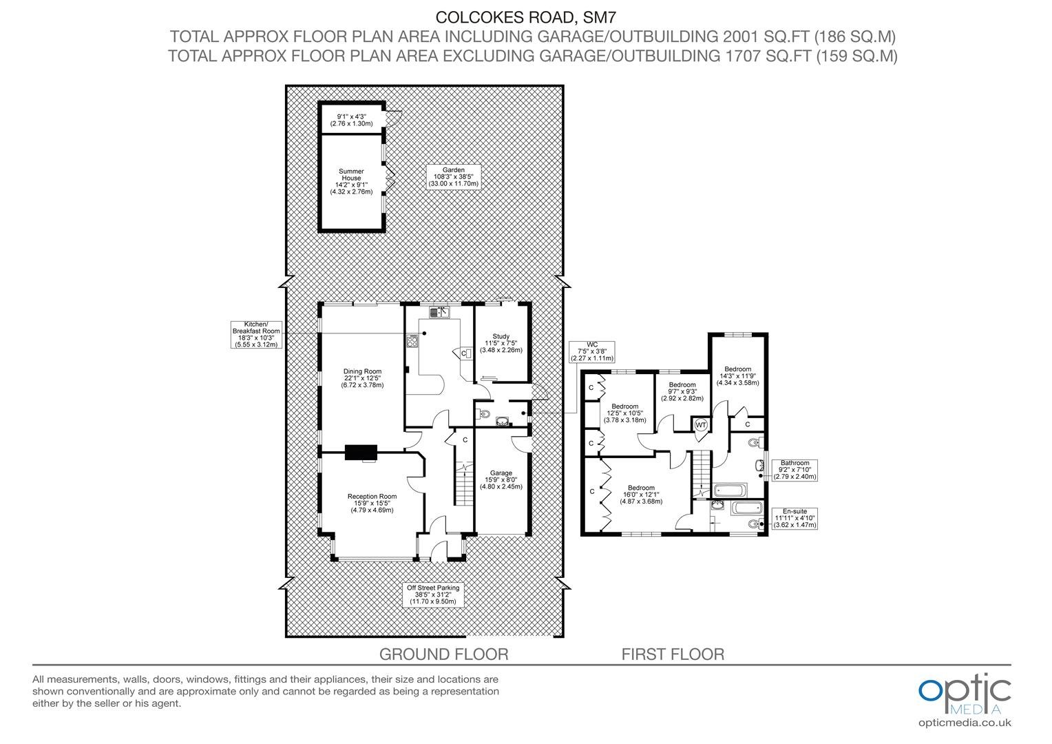
Located on the charming Colcokes Road in Banstead, this fantastic four-bedroom detached family home, built in the 1930's, offers a perfect blend of classic character and modern convenience. Just minutes from the vibrant Banstead village, this property is ideally situated for those seeking a family-friendly environment with easy access to local amenities.
Upon entering, you are greeted by two spacious reception rooms that provide ample space for relaxation and entertaining. The well-appointed kitchen breakfast room is perfect for family gatherings, while a versatile study offers the potential to serve as a guest bedroom if needed. The ground floor is designed with family living in mind, ensuring comfort and functionality.
The garden is a delightful outdoor space, ideal for children to play and for family gatherings. Additionally, a superb cabin in the garden presents an excellent opportunity for those working from home, providing a quiet and dedicated workspace away from the main house.
Moving upstairs, you will find four generously sized bedrooms, including a master suite with an ensuite bathroom, ensuring privacy and convenience for the whole family. A family bathroom serves the remaining bedrooms, making morning routines a breeze.
This property also boasts a garage and off-road parking for up to three vehicles, a valuable feature in this sought-after area. With outstanding schools, transport facilities, shops, and restaurants all within easy reach, this home is perfect for families looking to settle in a vibrant community. Do not miss the opportunity to make this charming house your new family home.
Upon entering, you are greeted by two spacious reception rooms that provide ample space for relaxation and entertaining. The well-appointed kitchen breakfast room is perfect for family gatherings, while a versatile study offers the potential to serve as a guest bedroom if needed. The ground floor is designed with family living in mind, ensuring comfort and functionality.
The garden is a delightful outdoor space, ideal for children to play and for family gatherings. Additionally, a superb cabin in the garden presents an excellent opportunity for those working from home, providing a quiet and dedicated workspace away from the main house.
Moving upstairs, you will find four generously sized bedrooms, including a master suite with an ensuite bathroom, ensuring privacy and convenience for the whole family. A family bathroom serves the remaining bedrooms, making morning routines a breeze.
This property also boasts a garage and off-road parking for up to three vehicles, a valuable feature in this sought-after area. With outstanding schools, transport facilities, shops, and restaurants all within easy reach, this home is perfect for families looking to settle in a vibrant community. Do not miss the opportunity to make this charming house your new family home.
































