Canons Lane, Burgh Heath, Tadworth
£570,000
Guide Price
Property Features
Property Features
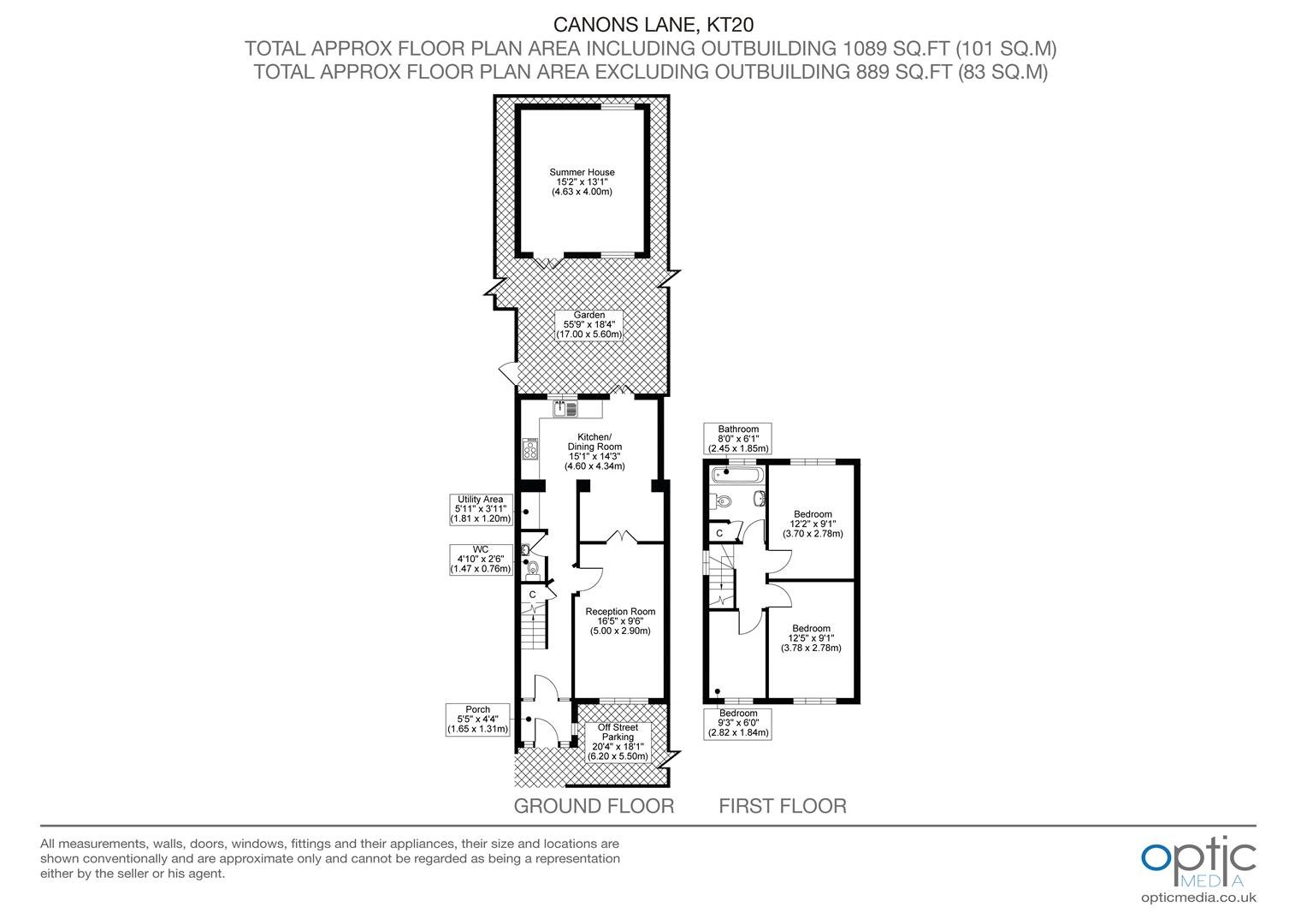
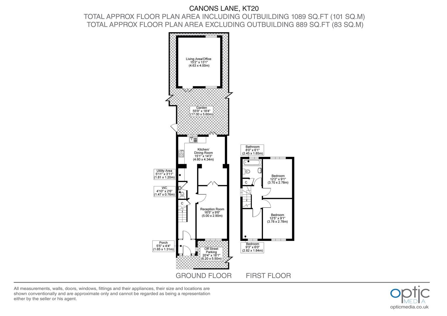
- 3 Bedroom semi-detached extended family home
- Two reception areas plus a superb outdoor garden room
- Surrounded by a host of amenities and neighbouring towns
- Council Tax Band E
- EPC Rating C
Property Summary
Set within a peaceful semi-rural setting surrounded by open countryside, this beautifully presented three-bedroom extended family home combines spacious modern living with outstanding rural outlooks, including far-reaching views across farmland and rolling fields.
The property offers well-balanced accommodation, featuring; a welcoming lounge, a generous kitchen/diner ideal for family life and entertaining, a separate utility area and downstairs WC. A real highlight is the impressive garden room, creating a bright and versatile additional living space that enjoys a strong connection to the landscaped rear garden and surrounding views.
Upstairs in the main house, you will find three inviting bedrooms, each designed to provide a restful retreat. The luxury family bathroom is tastefully finished, ensuring a touch of elegance in your daily routine.
In a desirable location on the edge of countryside, this home benefits from an enviable lifestyle with miles of scenic walks, cycling routes and bridleways on the doorstep, making it ideal for those who enjoy the outdoors. Despite it’s peaceful setting, the property remains exceptionally well connected, with the M25 motorway just a short drive away, providing a fast route into London and towards both Gatwick and Heathrow airports.
A choice of nearby railway stations including Kingswood, Tadworth and Tattenham Corner, offering convenient rail services into Central London.
Everyday amenities are close at hand, with local shops including a post office and Little Waitrose. For a wider selection of shopping, dining, and leisure facilities, the popular Banstead High Street is just a short distance away.
Families are particularly well served by a strong selection of highly regarded schools, including; St Anne's Catholic Primary School, Banstead Infant/Junior Schools, Banstead Preparatory School, Aberdour Preparatory School, The Beacon Secondary School and Epsom College.
Call our sales team today to arrange a viewing.
The property offers well-balanced accommodation, featuring; a welcoming lounge, a generous kitchen/diner ideal for family life and entertaining, a separate utility area and downstairs WC. A real highlight is the impressive garden room, creating a bright and versatile additional living space that enjoys a strong connection to the landscaped rear garden and surrounding views.
Upstairs in the main house, you will find three inviting bedrooms, each designed to provide a restful retreat. The luxury family bathroom is tastefully finished, ensuring a touch of elegance in your daily routine.
In a desirable location on the edge of countryside, this home benefits from an enviable lifestyle with miles of scenic walks, cycling routes and bridleways on the doorstep, making it ideal for those who enjoy the outdoors. Despite it’s peaceful setting, the property remains exceptionally well connected, with the M25 motorway just a short drive away, providing a fast route into London and towards both Gatwick and Heathrow airports.
A choice of nearby railway stations including Kingswood, Tadworth and Tattenham Corner, offering convenient rail services into Central London.
Everyday amenities are close at hand, with local shops including a post office and Little Waitrose. For a wider selection of shopping, dining, and leisure facilities, the popular Banstead High Street is just a short distance away.
Families are particularly well served by a strong selection of highly regarded schools, including; St Anne's Catholic Primary School, Banstead Infant/Junior Schools, Banstead Preparatory School, Aberdour Preparatory School, The Beacon Secondary School and Epsom College.
Call our sales team today to arrange a viewing.




























