Burdon Lane, South Cheam
£1,600,000
Offers Over
Property Features
Property Features
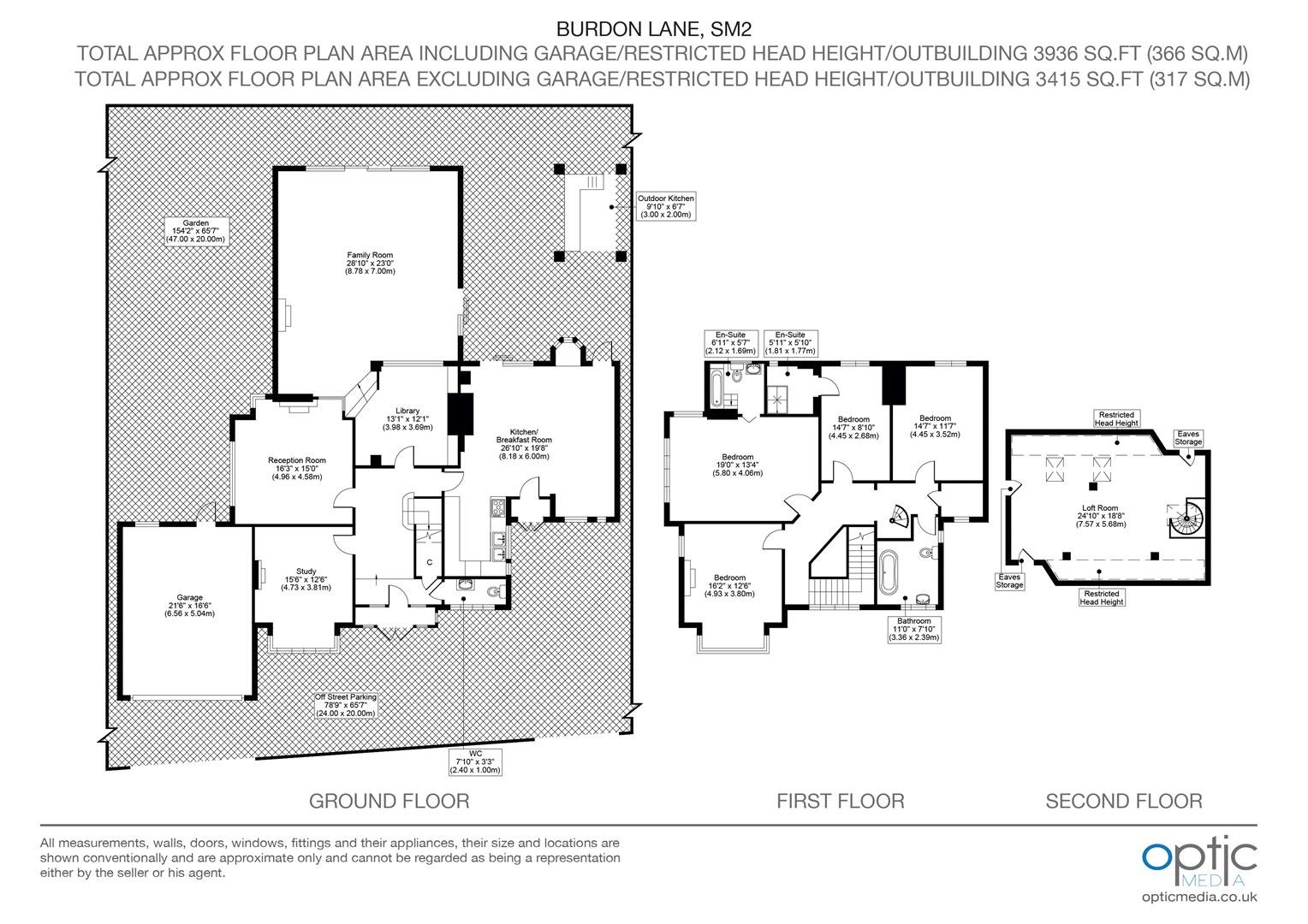
- Substantial detached home arranged over three floors
- Set on an impressive plot in a highly desirable location
- Principal bedroom suite plus additional bedroom with en-suite
- Generous driveway with ample off-street parking and garage
- Council Tax Band G
- EPC Rating: D
Property Summary
Welcome to Burdon Lane – A substantial and elegant detached home set on an impressive plot, offering expansive accommodation and exceptional versatility across three floors.
This impressive home provides beautifully balanced living space, ideally suited to modern family life. The ground floor is arranged to offer both formal and informal reception areas, including a generous principal reception room and a spacious family room, creating a comfortable yet refined environment for everyday living and entertaining. A library area provides a quieter retreat, ideal for reading or working from home. At the heart of the home, a superb kitchen and breakfast room serves as a natural gathering space, thoughtfully arranged for both family living and social occasions, and complemented by a separate utility room.
The upper floors provide well-proportioned bedroom accommodation, including a principal suite with en-suite, alongside a further bedroom also benefiting from en-suite. Additional bedrooms are served by a family bathroom, offering excellent flexibility for family and guests. The second floor provides a further loft room, ideal for adaptable use.
Externally, the property is set within a substantial plot, with a large private rear garden offering excellent space for outdoor entertaining and relaxation. To the front, a generous driveway provides ample off-street parking and access to the garage.
Combining scale, flexibility and a highly desirable setting, Burdon Lane represents a rare opportunity to acquire a superb long-term family home.
This impressive home provides beautifully balanced living space, ideally suited to modern family life. The ground floor is arranged to offer both formal and informal reception areas, including a generous principal reception room and a spacious family room, creating a comfortable yet refined environment for everyday living and entertaining. A library area provides a quieter retreat, ideal for reading or working from home. At the heart of the home, a superb kitchen and breakfast room serves as a natural gathering space, thoughtfully arranged for both family living and social occasions, and complemented by a separate utility room.
The upper floors provide well-proportioned bedroom accommodation, including a principal suite with en-suite, alongside a further bedroom also benefiting from en-suite. Additional bedrooms are served by a family bathroom, offering excellent flexibility for family and guests. The second floor provides a further loft room, ideal for adaptable use.
Externally, the property is set within a substantial plot, with a large private rear garden offering excellent space for outdoor entertaining and relaxation. To the front, a generous driveway provides ample off-street parking and access to the garage.
Combining scale, flexibility and a highly desirable setting, Burdon Lane represents a rare opportunity to acquire a superb long-term family home.











































